Tener una vivienda propia es el sueño de la mayoría de las personas, pero es un deseo que muy pocos pueden cumplir debido al precio que poseen las propiedades tradicionales. Justamente, el costo es una de las grandes ventajas que tiene una casa prefabricada, ya que permiten que sean muchas las familias que pueden acceder a una propiedad.
Tres ambientes y baño estilo americano: cómo es la casa prefabricada que se vende a 9.350 dólares
Una casa prefabricada es la solución ideal para muchas personas o familias que desean acceder a una vivienda propia
Una de las casas prefabricadas más buscadas por calidad y precio es una vivienda estilo americano que oferta la empresa Viviendas Roca a través de su sitio web. Esta tiene un costo de $ 13.248.810 que, a valor dólar blue, significan 9350 dólares.
►TE PUEDE INTERESAR: La moderna casa prefabricada con dos habitaciones y terraza que se vende en Amazon por menos de 20.000 dólares
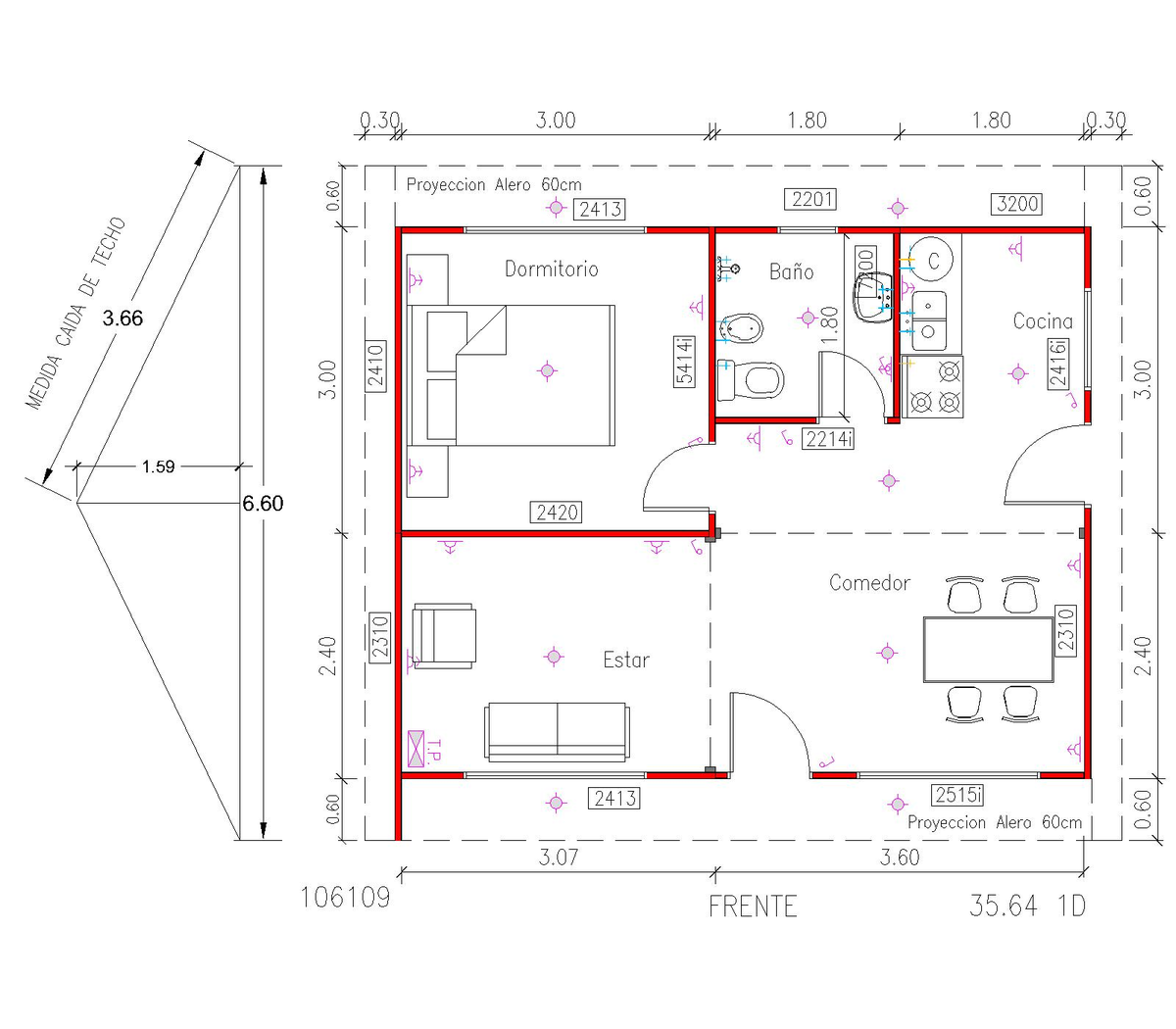
Cómo es la casa prefabricada de 9350 dólares
Esta casa prefabricada posee tres ambientes y un baño al estilo americano. También posee un techo a dos aguas y otras características como:
- Revestimiento cementicio
- Puerta frontal y ventanas panorámicas diseñadas para realzar su estilo
- Estructura modular seca para durabilidad
- Ventanas de aluminio
- Base de hormigón
►TE PUEDE INTERESAR: Tres dormitorios, cocina y baño equipado: Cómo es la casa prefabricada que se vende a menos de 13.000 dólares
Ventajas de comprar una casa prefabricada
Comprar una casa prefabricada posee muchas ventajas. La principal es el costo económico, ya que son mucho más baratas que las viviendas tradicionales. Además, están hechas de un material durable y resistente ante cualquier fenómeno de la naturaleza, como sismos o grandes lluvias.
Asimismo, una casa prefabricada es mucho más rápida de construir por lo que es perfecta para aquellos casos de familias que tienen apuro en mudarse. Esto también viene de la mano con que se pueden levantar en cualquier lugar o terreno e incluso algunas se pueden trasladar de un lugar a otro en caso de necesitar realizar una mudanza.






