Una casa prefabricada puede ser la opción perfecta para aquellas personas o familias que sueñan tener una vivienda propia y que no tienen el presupuesto o la posibilidad para acceder a una propiedad tradicional.
Dos dormitorios, cochera y estar: así es la casa prefabricada que se vende con un gran descuento
Una casa prefabricada es la solución para muchas familias que desean tener una vivienda propia y que no les alcanza para adquirir una tradicional
De hecho, una casa prefabricada es mucho más barata que una vivienda tradicional, pero no es la única ventaja con la que cuentan y que hace que se vea tan seductora al momento de invertir.
Una de las casas prefabricadas que se ven más cómodas y modernas es promocionada en el sitio web de Vecta Constructora y está rebajada en 5.000 dólares, quedando a un valor 19.900 dólares.
►TE PUEDE INTERESAR: La moderna casa prefabricada con dos habitaciones y terraza que se vende en Amazon por menos de 20.000 dólares
Cómo es la casa prefabricada de 19.900 dólares
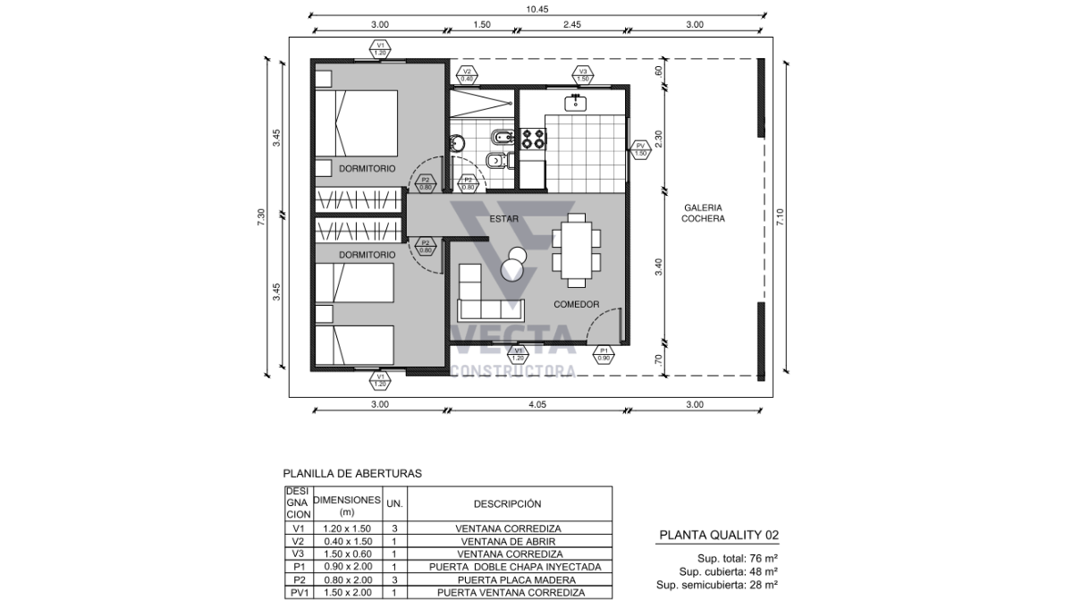
Esta casa prefabricada que se vende a 19.900 dólares posee un diseño muy moderno y tiene dos dormitorios, un baño, cocina, comedor, estar y una galería que puede funcionar como cochera. Todo en 76 metros cuadrados, de los cuales 48 son cubiertos y 26 semi cubiertos.
Según la descripción que hace la empresa de esta casa prefabricada, es de estilo moderno y muy funcional, con atención en cada detalle. Además, se cuenta con espacios amplios y luminosos y acabados de primera calidad, ideados para la comodidad de todos sus habitantes.
►TE PUEDE INTERESAR: Tres dormitorios, cocina y baño equipado: Cómo es la casa prefabricada que se vende a menos de 13.000 dólares
Ventajas de una casa prefabricada
Comprar una casa prefabricada tiene varias ventajas. La primera es su precio, que es mucho menor que el de una casa tradicional, pero no es el único, ya que también cuenta con la posibilidad de ser construida en muy pocos días y en cualquier lugar, lo que las hace ideales para todas aquellas personas que se encuentran apurados por irse a una propiedad que sea propia.
Además, hay modelos que son desarmables y se pueden levantar en cualquier otro lugar. Por último, todas las casas prefabricadas están hechas de material duradero y resistente, capaz de soportar cualquier fenómeno de la naturaleza o climático.






