Una vivienda tradicional puede salir muy cara y ser inalcanzable para millones de personas. Es allí donde reside la principal ventaja de una casa prefabricada, ya que estas suelen tener un precio mucho más bajo y algunas ventajas que las hacen muy seductoras para personas que desean mudarse solas o familias.
Dos dormitorios, porche y galería: así es la casa prefabricada que se vende a 31.500 dólares
Una casa prefabricada es la solución perfecta para muchas personas que desean vivir solas o en familia y no les alcanza para una vivienda tradicional
Un ejemplo de casa prefabricada muy atractivo es uno de los modelos minimalistas de Vecta Constructora, que se vende a 31.500 dólares a través de su sitio web y que cuenta con algunas características tendientes a provocar que sus habitantes se encuentren lo más cómodos posible.
►TE PUEDE INTERESAR: La moderna casa prefabricada con dos habitaciones y terraza que se vende en Amazon por menos de 20.000 dólares
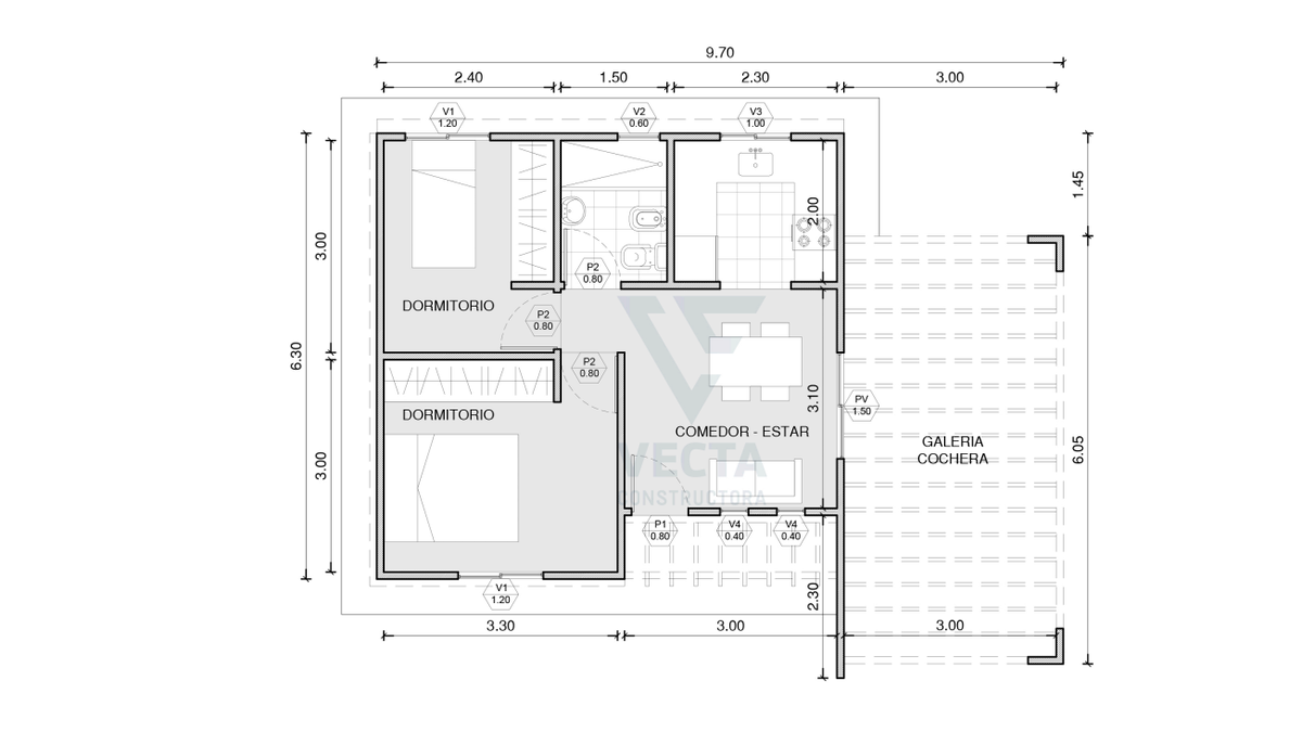
Cómo es la casa prefabricada de 31.500 dólares
Esta casa prefabricada de 31.500 dólares posee dos dormitorios, 1 baño, una cocina, comedor, estar, porche y cochera, según la descripción que hace la empresa sobre ella.
Asimismo, este modelo minimalista posee una terminación recta en el techo, lo que la hace muy moderna. Es una casa prefabricada ideal para familias pequeñas y numerosas. Su superficie total es de 60 metros cuadrados, de los cuales 38 son cubiertos.
►TE PUEDE INTERESAR: Tres dormitorios, cocina y baño equipado: Cómo es la casa prefabricada que se vende a menos de 13.000 dólares
Ventajas de comprar una casa prefabricada
Comprar una casa prefabricada tiene muchas ventajas, aunque la principal es su precio. No obstante, también son perfectas para cuando una familia está apurada por mudarse, ya que estas se construyen en pocos días y quedan perfectamente habitables.
Otra de las ventajas de una casa prefabricada es que se pueden construir en cualquier lugar y, en algunos casos, se las puede mover de un sitio a otro. Finalmente, no se puede dejar de lado que están hechos con materiales seguros y durables, capaz de afrontar sismos u otros fenómenos naturales o del clima.






