Todas las familias desean tener una vivienda propia y una casa prefabricada se ha convertido en la solución ideal para muchas de ellas, debido a su precio en comparación con las propiedades tradicionales.
Tres habitaciones y premium: cómo es la casa prefabricada de lujo que vale 12.780 dólares
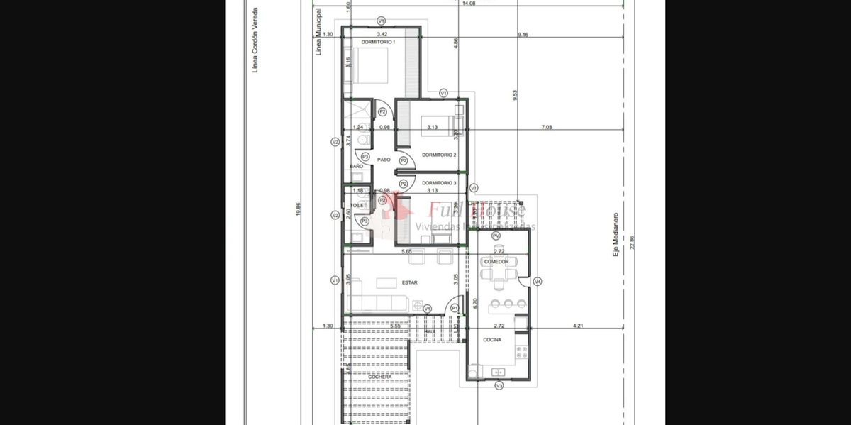
Esta casa prefabricada cuenta con tres habitaciones y es de una línea de lujo. Todos los detalles y características
En los últimos años, los costos y las variedades de modelos han hecho que las casas prefabricadas se conviertan en una opción muy tentadora para muchas personas. Entre los modelos más atractivos se encuentra esta vivienda de la empresa Full House que cuesta $ 15.589.950 que, en dólar blue, equivale a 12.780 dólares.
►TE PUEDE INTERESAR: Lujosa, amplia y de 4 habitaciones: cómo es la casa prefabricada que vale 11.250 dólares
Cómo es la casa prefabricada de 12.780 dólares
Esta casa prefabricada posee tres dormitorios y un total de 110 metros cuadrados, de los cuales 88 son cubiertos. Esta vivienda pertenece a la línea premium y se entrega en 20 días. Entre el resto de las características que posee son:
- Dormitorios con vistas al fondo
- Baño funcional y cómodo
- Antebaño
- Cocina con salida a patio
- Comedor/Estar amplio con vista al frente
- Cochera/Galería con pérgolas
- Instalación de agua fría y caliente
- Instalación de gas
- Instalación eléctrica y para aire acondicionado y televisión sin cableado
- Aberturas en aluminio con vidrio entero
►TE PUEDE INTERESAR: Dos pisos y terraza: Como es la casa prefabricada que se vende por menos de 20.500 dólares
Ventajas de comprar una casa prefabricada
Entre las ventajas que posee comprar una casa prefabricada, sin dudas, el precio es el más importante. Si bien, una prefabricada no es de la misma calidad que una hecha con materiales tradicionales, también son muy seguras y capaces de soportar cualquier tipo de inclemencia.
Además, las casas prefabricadas se pueden construir sobre casi cualquier terreno y en menos tiempo, lo que es ideal para personas o familias que buscan tener su vivienda propia en poco tiempo. Otra ventaja es que también son muy fáciles de ampliar y, en algunos casos, también de trasladar de un lugar a otro.






