En estos tiempos, comprar vivienda parece una utopía, algo casi imposible de lograr. Por eso, muchas familias que cuentan con un terreno en el que construir, se inclinan por una casa prefabricada. Sin dudas, son muchas las razones, pero el precio encabeza todos los puntos a favor que tienen este tipo de propiedades.
Tres habitaciones y estilo premium: cómo es la casa prefabricada que se vende a 14.900 dólares
Una casa prefabricada puede ser la solución ideal para muchas personas o familias que desean tener su propio techo
Pero una casa prefabricada también tiene, entre sus ventajas, que son tan fáciles de construir que su entrega se hace de manera muy rápida. Una de ellas, por ejemplo, la comercializa la empresa Pronta Viviendas a un valor de $ 18.605.000 que, en dólar blue, equivale a 14.900 dólares.
►TE PUEDE INTERESAR: Dos pisos y terraza: Como es la casa prefabricada que se vende por menos de 20.500 dólares
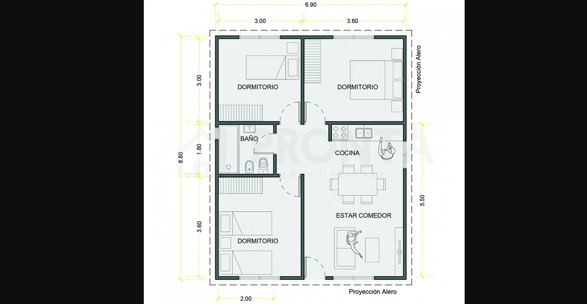
Cómo es la casa prefabricada de 14.900 dólares
Esta casa prefabricada de 14.900 dólares posee tres dormitorios, baño, living comedor y cocina. Según las características que brinda la empresa que la vende, también tiene:
- Paredes de 11 cm que permiten una mayor aislación y rigidez.
- Revestimiento con fibrocemento 100% impermeable de alto impacto.
- Estructura de madera maciza
- Aislante termo acústico en interior de paredes exteriores e interiores.
- Puertas internas placas
- Membrana hidrófuga, disminuye el paso de humedad del exterior protegiendo la estructura de la vivienda
- Fenólico OSB de 9.5 mm. Mayor aislación y rigidez.
- Cielo raso machimbre de Primera Calidad.
►TE PUEDE INTERESAR: Dos habitaciones, terraza y estilo chalet: Cómo es la casa prefabricada que se vende por 38.000 dólares en Amazon
Las ventajas y desventajas de comprar una casa prefabricada
Son varias las ventajas que tiene el comprar una casa prefabricada, pero las principales son el precio, la rapidez en construirse y que se pueden levantar en casi cualquier lugar. Además, son fáciles de ampliar y son más ecológicas.
En tanto, entre las desventajas que tiene una casa prefabricada es que requieren de más cuidados para que perduren más en el tiempo y que, si bien, sus materiales son de alta duración, no superan a los de una vivienda hecha a través de métodos de construcción tradicional.






