El sueño de muchas personas es tener su propia vivienda. Pero, el problema que hay con las propiedades tradicionales es que suelen ser muy costosas, a diferencia de una casa prefabricada, que se caracteriza por ser más ecológica y barata,
Transportable, ampliable y se entrega en 30 días: cómo es la casa prefabricada que se vende a 26.450 dólares
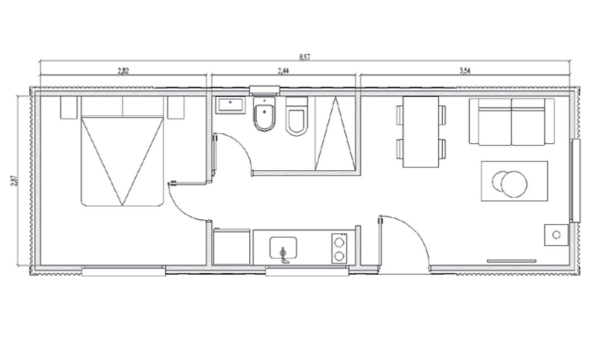
Una de las casas prefabricadas que más atención reciben es esta vivienda transportable de 26.450 dólares
Entre estas casas prefabricadas se encuentra una vivienda ecológica muy cómoda y que reúne las características ideales para personas solas o parejas. Según la empresa que la comercializa, Propanel, su valor es de $35.828.500, que en dólar blue equivale a 26.450 dólares.
►TE PUEDE INTERESAR: Dos habitaciones y se entrega en 20 días: cómo es la casa prefabricada que se vende a 8.250 dólares
Cómo es la casa prefabricada de 26.450 dólares
Esta casa prefabricada que se vende a 26.450 dólares es el llamado Módulo Attila, que tiene 27 metros cuadrados, se encuentra dividido en dos ambientes y se entrega 30 días después de su compra.
Pero estas no son las únicas características de esta casas prefabricada que se suele usar en la industria del gas y petróleo, el uso turístico y de vivienda permanente. Estas son:
- Se pueden instalar en cualquier lugar
- Son trasladables, por lo que uno las puede mudar de un lugar a otro cuando quiera
- Permiten ahorro energético y confort térmico
- Posee baño completo, cocina, estar-comedor y un dormitorio
- Instalación de agua
- Instalación eléctrica
- Instalación de desagüe
►TE PUEDE INTERESAR: Cómoda y de bajo precio: cómo es la casa prefabricada de 6500 dólares
Ventajas de tener una casa prefabricada
Entre las principales ventajas que tiene una casa prefabricada está el hecho de que son mucho más baratas que las tradicionales. Sin embargo, su plazo de entrega, el hecho de que se pueden colocar en cualquier lugar e incluso ser trasladadas, también son muy importantes a la hora de su elección. Eso, sin contar el hecho de que están construidas con material de mucha duración y muy resistente.






