El sueño de tener una vivienda propia siempre encuentra el mismo problema: el costo económico que representa. Por eso mismo es que una casa prefabricada termina siendo una solución muy seductora, tanto para personas solas como para familias.
Dos dormitorios y cochera: cómo es la lujosa casa prefabricada de 9450 dólares
Tener una vivienda es el sueño de muchas personas y una casa prefabricada puede ser la solución para muchas de ellas
En este caso, la empresa Viviendas Roca ofrece en su sitio web una casa prefabricada de dos habitaciones a un precio de referencia de $ 13.248.810, lo que equivale a 9450 dólares, a valor dólar blue. Este precio, sin dudas, puede llegar a seducir a muchas personas que buscan tener su techo propio.
►TE PUEDE INTERESAR: Esta moderna casa de dos habitaciones se vende en Amazon a 22.000 dólares
Características de la casa prefabricada
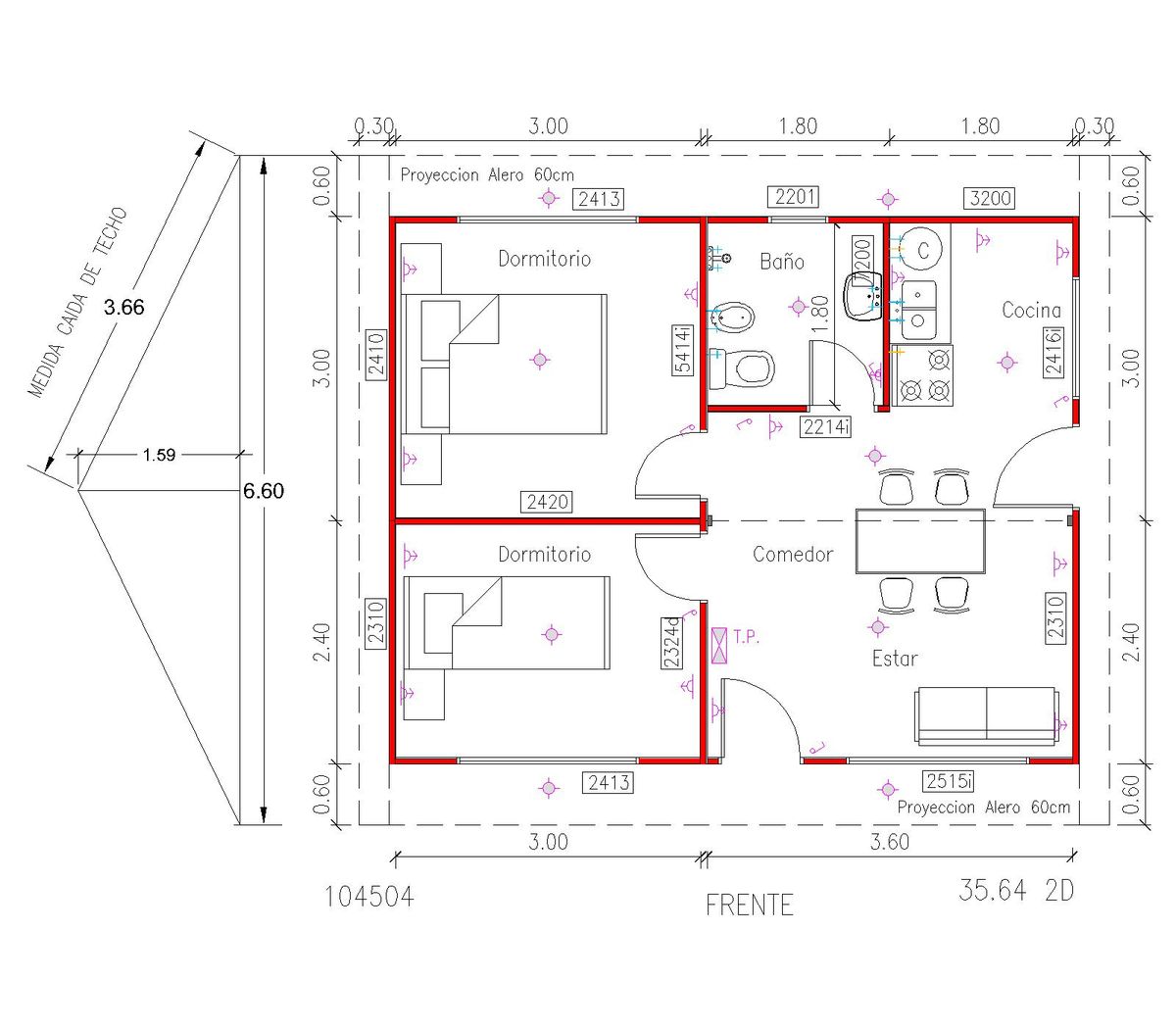
Según la descripción que da la empresa, esta casa prefabricada tiene 3 ambientes y 1 baño al estilo americano. Además, la vivienda presenta un techo a dos aguas, ventanas panorámicas y una estructura modular que tiene como fin asegurar la durabilidad de la vivienda. Otras características son:
- Un dormitorio de 3 metros por 2,40
- Un dormitorio de 3 metros por 3
- Cocina
- Comedor
- Baño
- Pasillo
- Cochera descubierta
►TE PUEDE INTERESAR: Tres habitaciones y dos baños: cómo es la casa prefabricada que se vende a 26.350 dólares
Ventajas de la casa prefabricada
Una casa prefabricada presenta varias ventajas con respecto a las casas tradicionales, pero es su precio lo que más atrae a los compradores, ya que suelen valer menos y planear ampliaciones para el futuro.
Además, una casa prefabricada tiene otras ventajas como el hecho de que se pueden colocar en cualquier terreno y se construyen en menos tiempo, lo que es perfecto para personas o familias que buscan tener su vivienda propia lo más rápido posible. Además, están hechas para que duren mucho tiempo y soporte todo tipo de inclemencias climáticas o fenómenos de la naturaleza.






