Hay un sueño que tienen todas las familias, que es la posibilidad de poseer una vivienda propia. Si bien, una propiedad tradicional puede ser muy cara, una casa prefabricada puede ser la solución para todas esas personas que buscan tener su propio techo.
Tres habitaciones y galería: cómo es la casa prefabricada que se vende a 15.200 dólares
Esta casa prefabricada de 15.200 dólares es una de las más atractivas para muchas familias que buscan tener su vivienda propia. Todos los detalles
Y es que una casa prefabricada tiene muchas ventajas que la hacen muy seductoras para las personas que buscan tener su propia vivienda. Pero, la principal es que su precio es mucho más barato que una vivienda tradicional y prueba de ellos es una propiedad que se vende a $21.000.000, que en dólar blue equivale a 15.200 dólares.
►TE PUEDE INTERESAR: Cuatro habitaciones y moderna: Cómo es la casa prefabricada que se vende por menos de 18.000 dólares
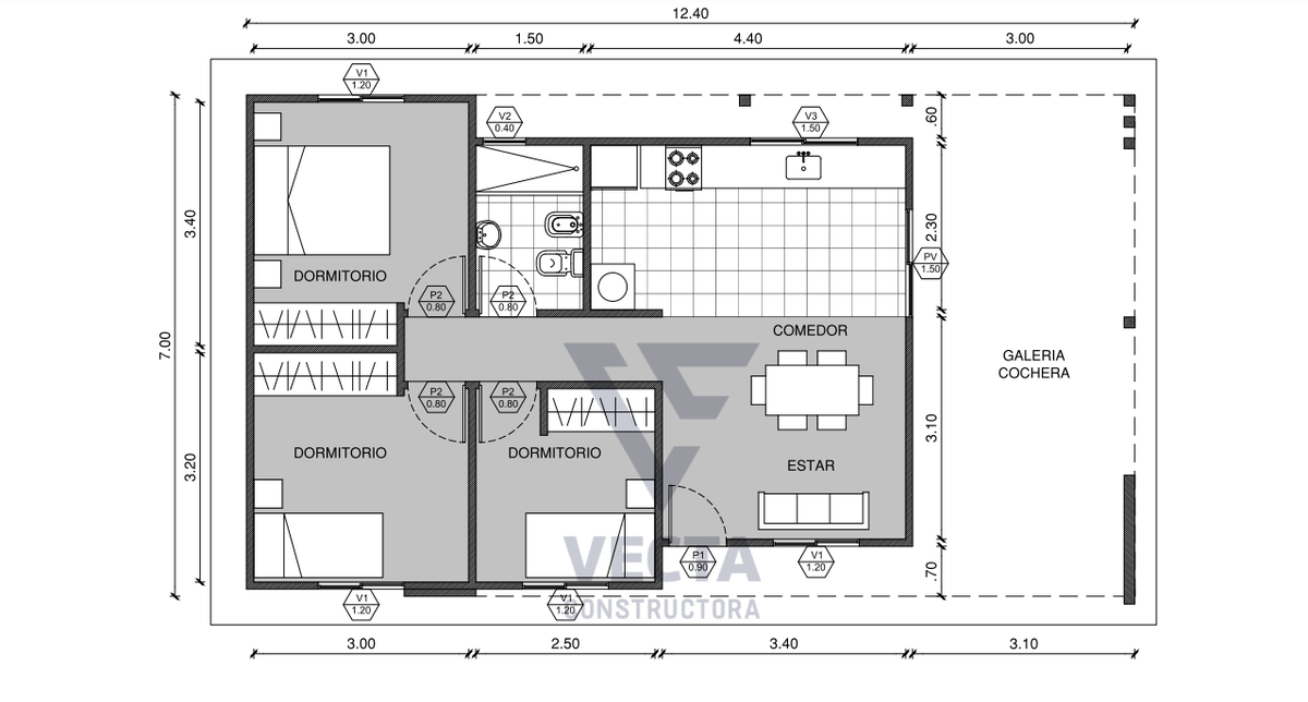
Cómo es la casa prefabricada de 15.200 dólares
Esta casa prefabricada se caracteriza por su elegancia y confort. Es vendida a 15.200 dólares por la empresa Vecta Constructora y combina un estilo muy moderno y funcional para cada familia que decida habitarla.
Según la descripción que hace la propia empresa en su sitio web sobre esta casa prefabricada, se trata de una vivienda que cuenta con espacios muy amplios y luminosos, diseñados especialmente para el disfrute de todas las familias.
Estas casas prefabricadas cuentan con una superficie total de 85 metros cuadrados, de los cuales 58 son cubiertos. Además, poseen 3 dormitorios, un baño, una cocina, comedor, estar y una galería que también puede ser utilizada como cochera.
►TE PUEDE INTERESAR: Lujo, confort y un estilo moderno: La casa prefabricada que se vende en Amazon por menos de 24.000 dólares
Ventajas de tener una casa prefabricada
Una casa prefabricada es la solución perfecta para muchas familias que quieren acceder a una vivienda propia y que no pueden al ser muy caras. Una propiedad de este tipo no solo es más barata, sino que se construye en un tiempo mucho menor y se puede levantar en cualquier terreno, lo que las convierte en una excelente alternativa a la hora de tener un techo propio.






