Una casa prefabricada puede ser el camino para que muchas personas logren cumplir el sueño de tener una vivienda propia. Y es que una casa prefabricada cuesta mucho menos que una tradicional y son más rápidas de construir.
Tres habitaciones y dos baños: cómo es la casa prefabricada que se vende a 26.350 dólares
Muchas personas sueñan con tener una vivienda propia, por lo que una casa prefabricada es muchas veces una gran solución
En este caso, la empresa Viviendas Roca promociona en su sitio web unas elegantes casas prefabricadas modernas de tres habitaciones que se ven muy elegantes y cómodas y que se venden a 26.350 dólares o $ 34.364.722.
►TE PUEDE INTERESAR: Esta moderna casa de dos habitaciones se vende en Amazon a 22.000 dólares
Cómo es la casa prefabricada de 26.350 dólares
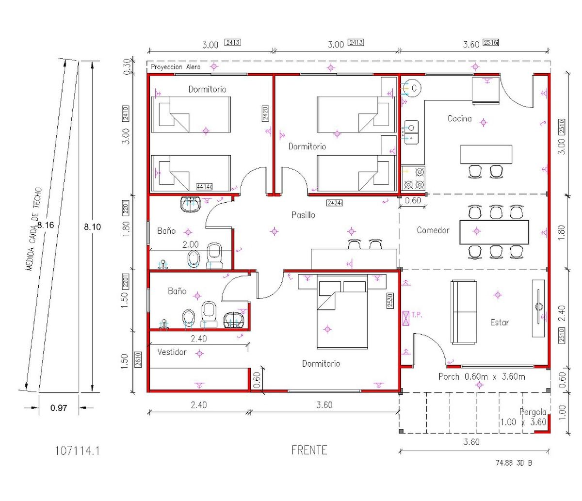
Según la descripción que hace la empresa en su sitio, esta casa prefabricada se trata de una vivienda CUBE de 4 ambientes y 2 baños que se caracteriza por su formato minimalista chic y funcional.
Esta casa prefabricada presenta una estructura modular seca, un diseño contemporáneo y se caracterizan por su durabilidad.
Además, la casa prefabricada presenta:
- Cañerías para agua, gas y electricidad
- Cocina, comedor y estar
- Porche
- Una de las habitaciones tiene vestidor
Vale aclarar que el precio de 26.350 dólares es de referencia, ya que el propio sitio permite cotizar en donde uno quiere construir la casa prefabricada e incluso puede llegar a salir más barato.
►TE PUEDE INTERESAR: Casas prefabricadas: diseños en madera sustentables y económicos
Ventajas de la casa prefabricada
Entre las ventajas que tiene una casa prefabricada se puede contar el hecho de que son de un valor más bajo y que se pueden construir en cualquier lugar. Además, está el hecho de que existen de diferentes modelos, algunos muy baratos en comparación a otros y que permiten ser ampliados.
Además, las casas prefabricadas se construyen más rápido, por lo que es ideal para personas o familias que se encuentran apuradas por tener su vivienda propia y mudarse.





