Uno de los sueños más recurrentes por las familias, pero también uno de los más difíciles es lograr tener un techo propio. Las viviendas tradicionales suelen ser muy caras, ya sea para construir o para comprar estando terminadas. Es por eso que, para muchas personas, una casa prefabricada es la forma en llegar a cumplir ese sueño.
Moderna, dos habitaciones y se entrega en 60 días: cómo es la casa prefabricada que rompe los esquemas
Esta moderna casa prefabricada se puede instalar en cualquier lugar e incluso ser trasladada de un lugar a otro sin ningún tipo de problemas
Desde hace un tiempo, las casas prefabricadas se han convertido en una opción muy interesante a la hora de tener una vivienda propia. El precio que estas tienen es la principal razón, pero no la única. La existencia de varios modelos y otras ventajas hacen que este tipo de viviendas sean una opción interesante para muchas familias. Un ejemplo de ello es esta vivienda de la empresa Propanel que se vende a $54.034.000, precio que en dólar blue equivale a 46.000 dólares, aproximadamente.
►TE PUEDE INTERESAR: Lujosa, amplia y de 4 habitaciones: cómo es la casa prefabricada que vale 11.250 dólares
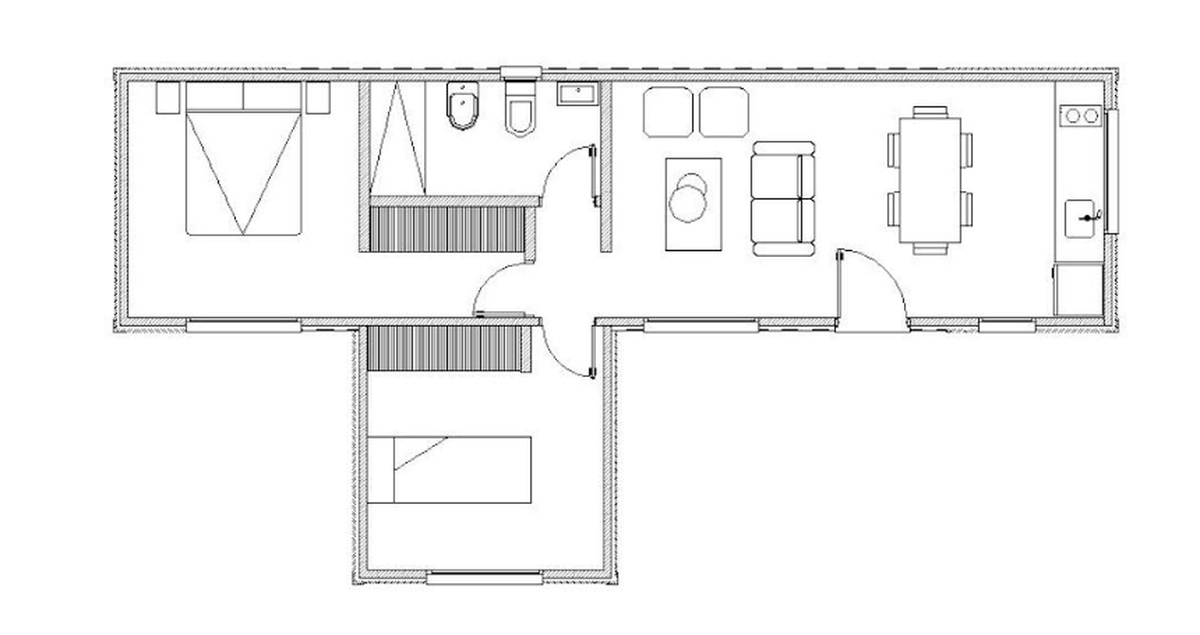
Cómo es la casa prefabricada de 46.000 dólares
Esta casa prefabricada de 46.000 dólares posee 45 metros cuadrados y 3 ambientes. Según la descripción de la empresa que la comercializa, este modelo llamado Attila permite el ahorro energético y el confort térmico.
Entre las características que ofrece esta casa prefabricada está que tiene baño completo, cocina, dos dormitorios, estar comedor y que se entrega en 60 días.
►TE PUEDE INTERESAR: De lujo y con cochera: cómo es la casa prefabricada de 15.220 dólares
Sin embargo, hay otros puntos a tener a cuenta y es que este tipo de casa prefabricada es muy utilizada tanto como vivienda permanente, como para uso turístico o actividades en medio de superficies alejadas, como suele ocurrir en actividades relacionadas al gas y al petróleo, por eso mismo es que transportables y se pueden instalar en cualquier lugar al que pueda acceder un camión.
Por último, estas casas prefabricadas son muy fáciles de ampliar y también, por el tipo de material con el que están hechas, son resistentes a todo tipo de inclemencias de la naturaleza.






