Una casa prefabricada se han convertido en una solución cada vez más popular para quienes desean construir su hogar de manera más económica en comparación con las construcciones tradicional. Este tipo de vivienda son una alternativa que ofrece múltiples ventajas, desde su rapidez de ensamblaje hasta su versatilidad.
La moderna casa prefabricada con cinco habitaciones que se vende por menos de 14.000 dólares en Amazon
Esta casa prefabricada que ofrece Amazon es perfecta para quienes desean un hogar asequible sin renunciar al estilo y la calidad
El gigante del comercio electrónico Amazon ha sabido captar la creciente demanda de este tipo de viviendas y ofrece una amplia gama de opciones de casas prefabricadas en su plataforma. Estas casas están disponibles para envío a prácticamente cualquier parte del mundo, lo que permite a los compradores acceder a una solución de vivienda moderna y asequible sin importar su ubicación geográfica.
►TE PUEDE INTERESAR: Dos pisos y terraza: Como es la casa prefabricada que se vende por menos de 20.500 dólares
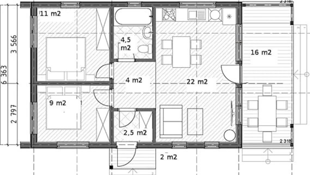
La moderna casa prefabricada con seis habitaciones que se vende por menos de 14.000 dólares en Amazon
Esta casa prefabricada de marca genérica mide entre 20 pies, está construida con materiales de alta calidad respetuosos con el medio ambiente para garantizar durabilidad y buen rendimiento de aislamiento. Así mismo, esta vivienda cuenta con:
- Tiene una estructura flexible, es fácil de transportar e instalar, y es adecuada para varios escenarios
- Cocina y baño equipado
- Dormitorios personalizables entre 1 y 3
- Área de porche frontal cubierta ideal para relajarse, entretenerse o disfrutar del aire libre
►TE PUEDE INTERESAR: Lujosa, amplia y de 4 habitaciones: cómo es la casa prefabricada que vale 11.250 dólares
Según Amazon, esta casa prefabricada cuenta con una garantía de 3 años y mantenimiento de por vida. Es precio de base es de 13,800 dólares, dependiendo de las personalizaciones y el lugar de envío el precio varía.
Ventajas de una casa prefabricada
Las casas prefabricadas ofrecen múltiples beneficios. Son económicas y representan una opción accesible en comparación con las construcciones tradicionales, reduciendo significativamente los costos. Además, su rápido montaje y facilidad de transporte hacen que sean ideales para soluciones temporales o emergencias.
La personalización permite adaptar el diseño a las necesidades individuales, mientras que su sostenibilidad contribuye a un menor impacto ambiental. Estas casas también destacan por su versatilidad, pudiendo ser usadas como viviendas permanentes, oficinas, o estudios, ofreciendo flexibilidad y funcionalidad en un solo paquete.






