Una casa prefabricada suele ser la opción más buscada por aquellas familias y personas que desean construir un hogar a bajo costo. A veces resulta difícil conseguir un diseño que se le equiparare a las construcciones tradicionales. Sin embargo, este modelo de Amazon es la excepción.
Así es por dentro la casa prefabricada de ensueño que se vende en Amazon por 35.000 dólares
Esta moderna casa prefabricada realmente destaca y no solo por su estilo. Luminosa y espaciosa, esta opción de lujo es perfecta para quienes quieren construir un nuevo hogar de forma rápida y a un bajo costo.
Esta casa prefabricada que ofrece Amazon destaca y no solo por su estilo. Luminosa y espaciosa, esta opción de lujo con seis habitaciones es perfecta para quienes quieren construir un nuevo hogar de forma rápida y a un bajo costo.
►TE PUEDE INTERESAR: Lujo, confort y un estilo moderno: Así es la casa prefabricada que se vende en Amazon
Así es por dentro la casa prefabricada de ensueño que se vende en Amazon
Esta casa prefabricada de marca genérica que se encuentra en Amazon cuenta con un diseño sostenible, ya que está construida con materiales duraderos y ecológicos que requieren poco mantenimiento. Pero además, esta vivienda cumple con ciertas características y ventajas que la hacen la opción perfecta para vivir:
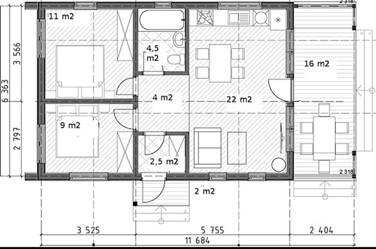
- Totalmente equipada con cocina, baño, electricidad y espacio de vida listo para mudarse.
- Su material de fabricación es de paneles de acero y madera de alta calidad
- La casa tiene clasificación contra incendios, resistente al viento y antisísmica.
- Ventanas de doble panel colocadas estratégicamente para brindar una iluminación natural óptima
- Transporte e instalación en cualquier lugar
- Mide 20 pies y cuenta con balcón
- Tiene una amplia sala de estar
Este modelo de casa prefabricada cuenta con un diseño personalizable en el cual se puede elegir entre una variedad de planos de planta y personaliza el diseño interior. Desde los colores exteriores y hasta los acabados para adaptarse a tu estilo de vida único.
►TE PUEDE INTERESAR: La moderna casa prefabricada con dos habitaciones y terraza que se vende en Amazon por menos de 20.000 dólares
Las ventajas esta casa prefabricada
Esta casa prefabricada de diseño moderno no solo ofrece una gran comodidad y seguridad, sino que también está diseñada para satisfacer las expectativas de quienes buscan construir su propia casa de manera rápida, más sostenible que las construcciones tradicionales y con mucho estilo.
Esta casa que ofrece Amazon está pensada para ser una construcción eficiente. Con un solo clic desde el momento de la compra hasta la instalación final, que se completa en solo unas pocas horas, todo el proceso está pensado para ser fácil y sin complicaciones, asegurando una experiencia satisfactoria y rápida.






