La construcción de una casa prefabricada se ha popularizado en los últimos años, esto no solo se debe a los altos costos de las construcciones tradicionales. Una vivienda de este estilo es la opción ideal para aquellas personas y familias que desean construir un hogar en tiempo récord, versátil y duradero.
Asi es la impresionante casa prefabricada de dos plantas que se vende por menos de 14.000 euros
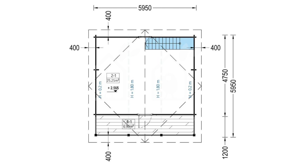
Esta casa prefabricada, que cuenta con porche, balcón y dos pisos, ofrece un confort inigualable y sin duda no tiene nada que envidiarle a las construcciones tradicionales. Todos los detalles
En este sentido, Pineca es una reconocida empresa de casas prefabricadas, ubicada en España, ofrece cientos de opciones con diferentes precios y diseños. Entre ellas se destaca el modelo Livington una vivienda que se caracteriza por contar con porche, un balcón, y dos pisos. Sin duda esta opción no tiene nada que envidiarle a las construcciones tradicionales. Te contamos sobre esta atractiva opción.
►TE PUEDE INTERESAR: Cinco habitaciones y amueblada: así es la casa prefabricada que se vende a menos de 6.000 euros
La impresionante casa prefabricada de dos plantas que se vende por menos de 14.000 euros
Esta casa prefabricada está construida de madera de conífera natural y que, según la página de Pineca web, cuenta con ciertas características que la hacen la vivienda perfecta como:
- Una superficie de 72 m² y amplios ventanales
- Dos plantas permite separar de manera eficaz los espacios de vida y de relajación.
- Una acogedora terraza en la primera planta y un encantador balcón en la segunda que le permitirán descansar cómodamente al aire libre.
- Un elegante tejado de dos aguas con un voladizo que añade un bonito toque final al encantador diseño arquitectónico de la casa
- Un espacio de baño independiente para mayor comodidad
- Un amplio salón
- Una estética tradicional
Originalmente, esta casa prefabricada estaba valorada en 15.130 euros, pero ahora se encuentran con un precio 13.841. Esta oferta presenta un ahorro de más de 1.500 euros, un factor clave para aquellas personas que están buscando una casa prefabricada de calidad y a la vez económica si la comparamos con las casas de construcción típica.
►TE PUEDE INTERESAR: La moderna casa prefabricada con dos habitaciones y terraza que se vende en Amazon por menos de 20.000 dólares
Ventajas de esta casa prefabricada
Esta casa prefabricada está cuidadosamente diseñada y hecha por profesionales altamente cualificados, utilizando materiales de calidad. Tiene una entrega a toda España con un tiempo de espera de entre 8 a 12 semanas. En el precio están incluidos: suelo, paredes, techo de madera, puertas y ventanas de madera, herrajes e IVA.






