Una casa prefabricada es la oportunidad perfecta para construir un hogar de forma rápida y bajo costo en comparación con las construcciones tradicionales. En este sentido, la empresa Pineca ofrece una vivienda que se destaca por sus espacios grandes y luminosos, donde pueden vivir cómodamente seis personas.
Así es por dentro la casa prefabricada de nueve habitaciones y estilo contemporáneo que se vende por menos de 30.000 euros
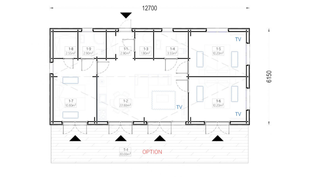
Esta casa prefabricada se destaca por estilo y sus espaciosas habitaciones, que la hacen una vivienda ideal para una familia de seis integrantes
Según la empresa, el modelo Nicole ha sido diseñada teniendo en cuenta a las familias más grandes, dando prioridad a la amplitud del área de vivienda y la comodidad residencial. Es así que esta casa prefabricada le ofrece a cada miembro de la familia la máxima privacidad y comodidad.
►TE PUEDE INTERESAR: La moderna casa prefabricada con dos habitaciones y terraza que se vende en Amazon por menos de 20.000 dólares
La casa prefabricada de estilo contemporáneo que se vende por menos de 30.000 euros
Esta casa prefabricada, que cuenta con nueve habitaciones, ofrece un confort inigualable. Así mismo, cumple con otras características que la hacen ideal para conformar un hogar, entre ellas Pineca resalta que esta vivienda tiene:
- 3 cómodas habitaciones que pueden albergar hasta seis personas bajo un mismo techo
- Grandes puertas de cristal en la parte frontal del edificio que le permitirá disfrutar de una gran cantidad de luz natural.
- Un salón luminoso con una cocina abierta, para que toda la familia disfrute de buenos momentos en compañía.
- Su revestimiento exterior vertical y tejado de dos aguas añaden un toque de arquitectura contemporánea.
- Una espaciosa terraza de 30 m² (opcional) donde podrá colocar algunas tumbonas y muebles de exterior para así relajarse y descansar tras un largo día.
- Un área de 68.11 m²
- Su material de construcción es de pino nórdico natural
Además, esta vivienda cuenta con aislamiento básico de las casas de madera, asegura un confort térmico óptimo para estancias más largas, tanto si decide vivir en ella durante los meses de verano como de invierno.
►TE PUEDE INTERESAR: Tres dormitorios, cocina y baño equipado: Cómo es la casa prefabricada que se vende a menos de 13.000 dólares
Beneficios de esta casa prefabricada
Esta casa prefabricada cuenta con una entrega de 8 a 12 semanas. También tiene una rebaja de verano, por lo cual se puede comprar por 29.726,00 euros. Este precio incluye IVA, viguetas, suelo, paredes y tabiques, doble acristalamiento en las ventanas y puertas de madera, marco, listones, herrajes y material de aislamiento.






